No.803の物件情報です  大阪 店舗 居抜き物件 貸店舗 株式会社三企

お問い合わせは info@miki-fudosan.com または 電話06-6768-5682

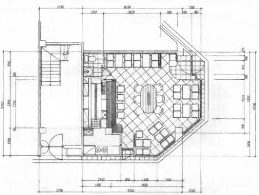
所在地

面積

礼金 賃料 交通機関 造作代
大阪市旭区清水2丁目

1階
14.84坪 50万円

12万円

京阪本線

千林駅

6分
なし

備考

角店のカフェ跡、公園の前です、人口密集地、飲食店少なく穴場的な場所です



gaikan

zumen

 

トップページ/居抜き物件/貸店舗物件/実績店/物件募集/会社概要/お問い合わせ